Skip to main content
Home
Properties
Puerto Nuevo
Hato Tejas
La Cerámica
Sabana Gardens
Victoria
El Fortress
EL COMANDANTE
About us
Teams
PRISM Team
CCRE Team
Contact Us
Home
Properties
Puerto Nuevo
Hato Tejas
La Cerámica
Sabana Gardens
Victoria
El Fortress
EL COMANDANTE
About us
Teams
PRISM Team
CCRE Team
Contact Us
VICTORIA INDUSTRIAL PARK
Property Features
Approx. 223,000 sq. ft. in 2 buildings.
Can be divided to suit.
Flexible design and layout allow for multiple uses: warehouse, showroom, and retail.
Ideal for logistics and distribution companies.
Virtually column-free, pre-cast concrete construction throughout.
Ceiling heights up to 25 ft.
Large loading docks and cargo facilities to accommodate up to 53 ft trailers
Prestigious tenant roster includes: EDIC College, Freshmart, Melaleuca, Trampoline Park
Site Features
8 minutes to SJU airport
10 minutes to Port of San Juan
5 minutes to Plaza Carolina
Walking distance to all shopping
Immediate access to: Baldorioty de Castro Highway (No.26), 65th Infantery Ave. and Routes 17, 66, 52
Expand image
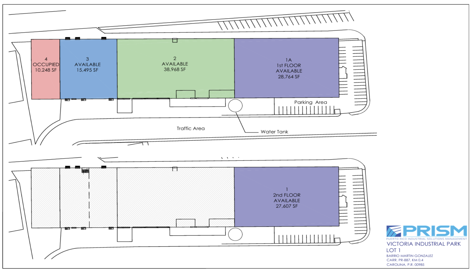
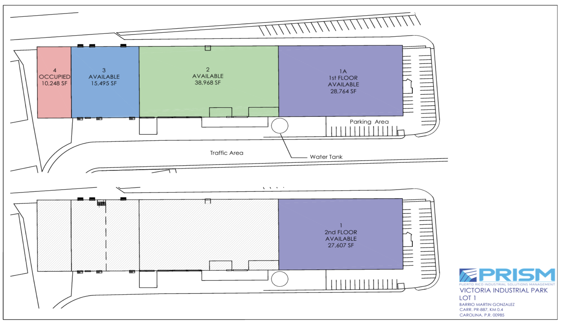
Floor Plan:
Lot VIP I
115,245 sq. ft.
Lot VIP I
Expand image
Floor Plan:
Lot VIP II
99,812 sq. ft.
Lot VIP II